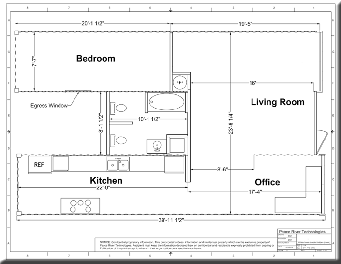
FloorPlan-Boxes and Elevation Examples